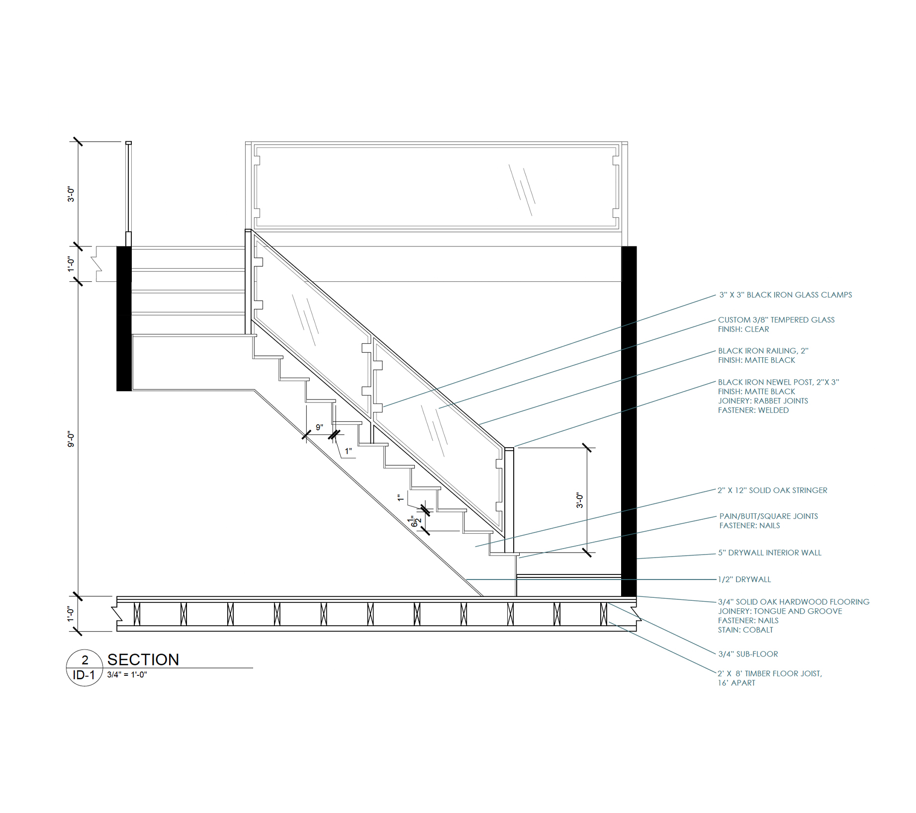
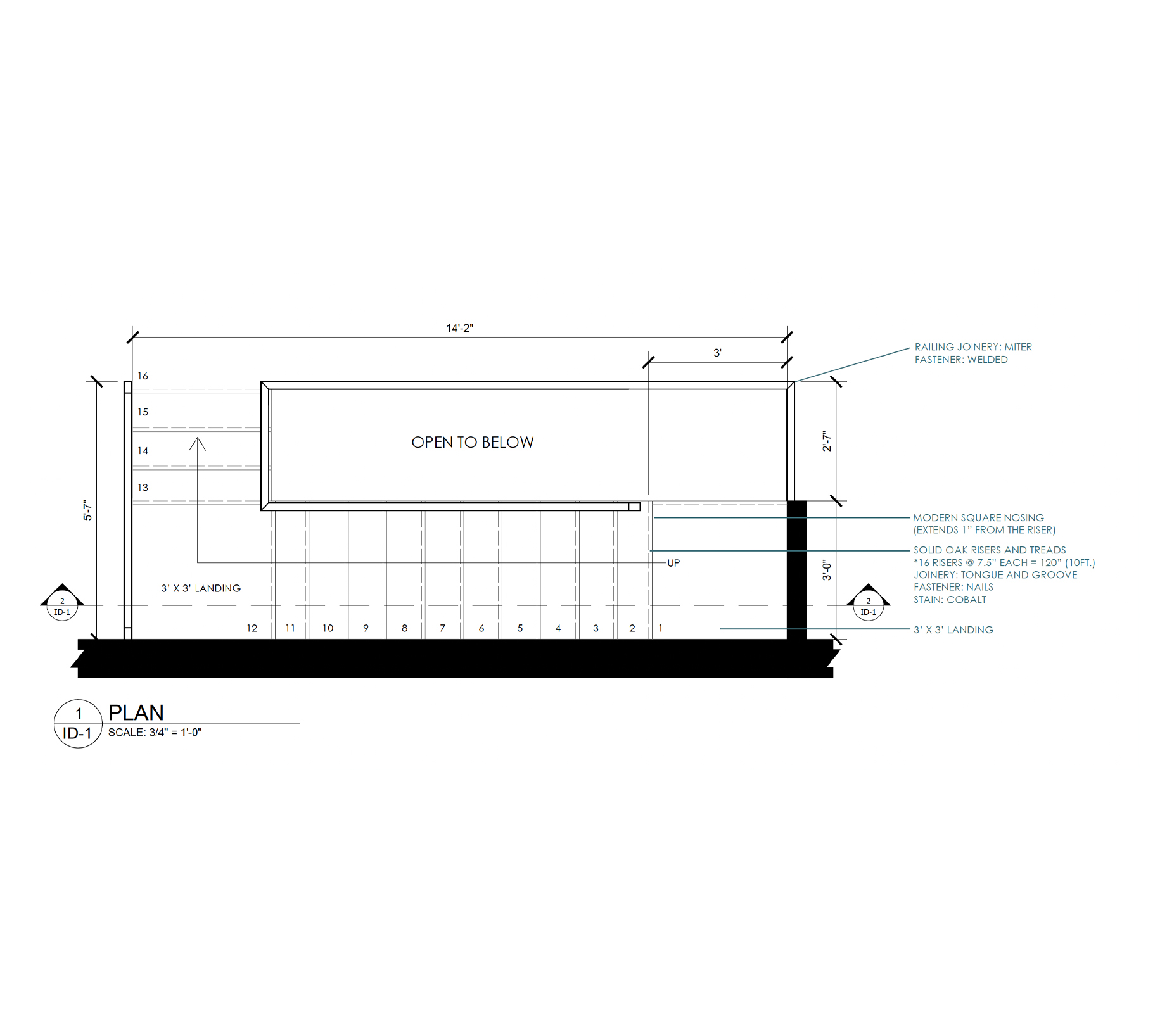
Residential: Laneway House
Class: Interiors – Residential (2023)

When creating my structure, I wanted to combine the axial lines of the city with the natural curves found in nature. The exterior curves extend into the house to dictate programming. This allows the concept to be experienced on the exterior and interior.

© GIGI DYBALSKI