Detailing Packages

Class: Codes & Systems (2024)

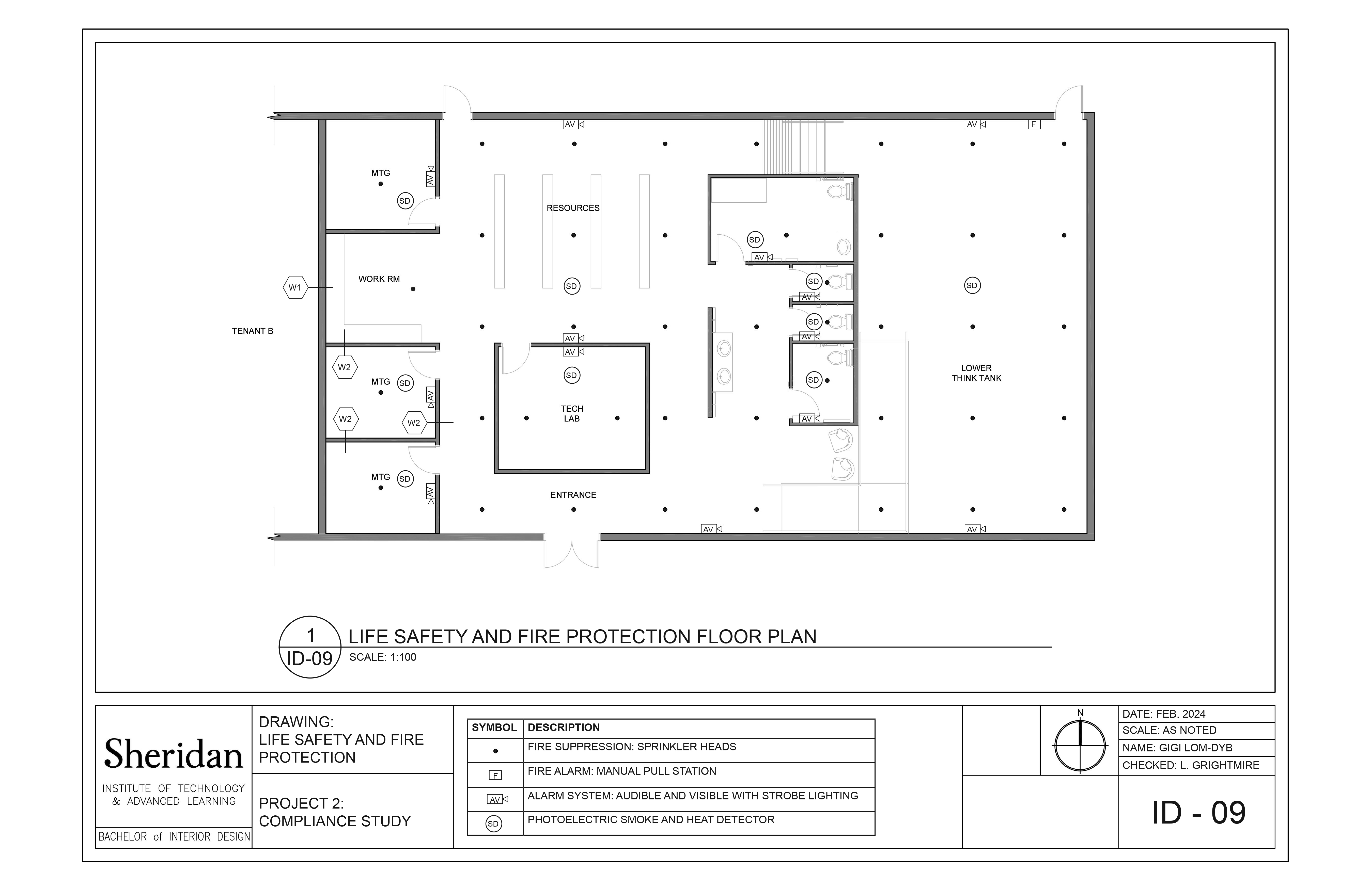
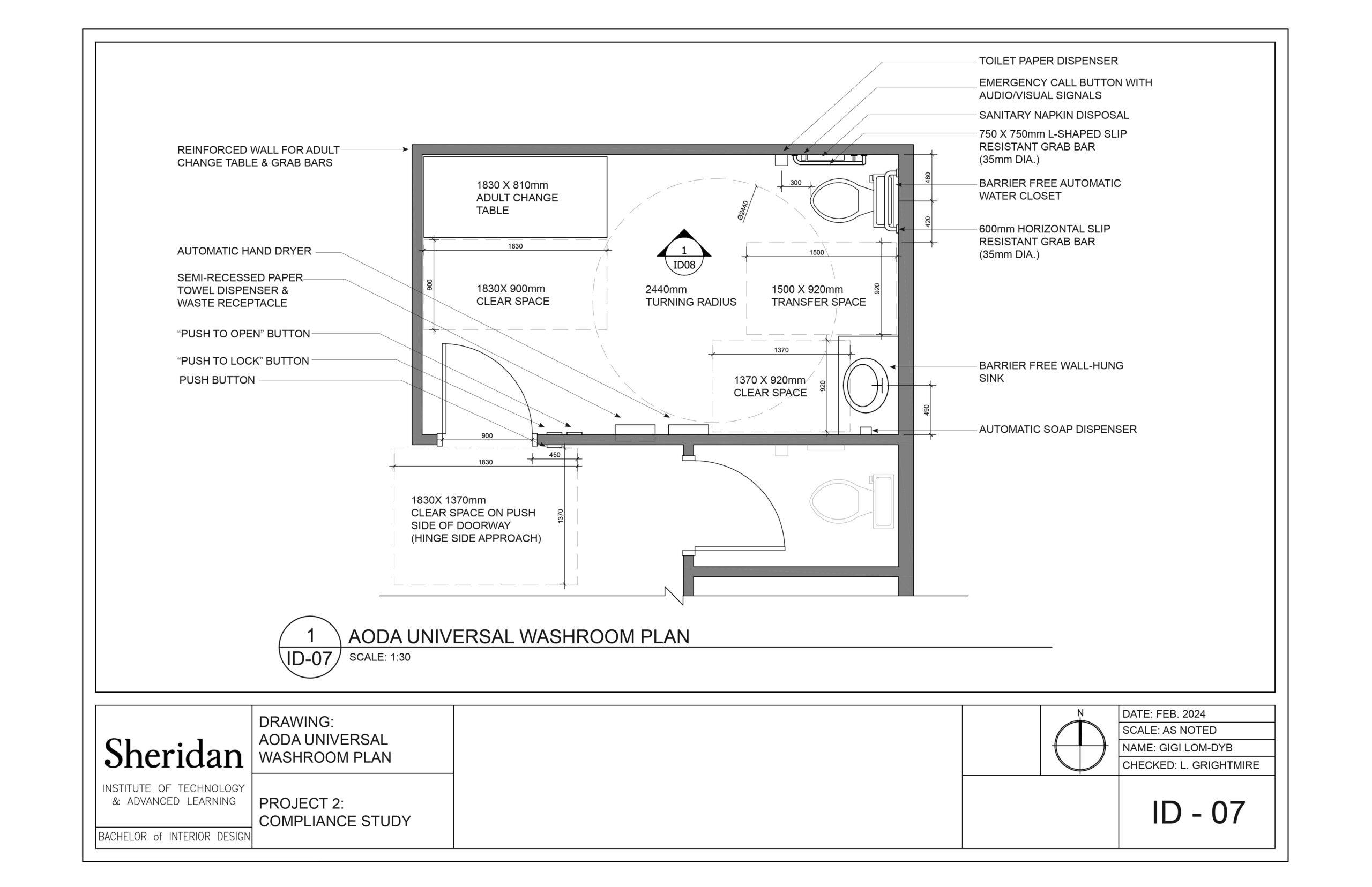
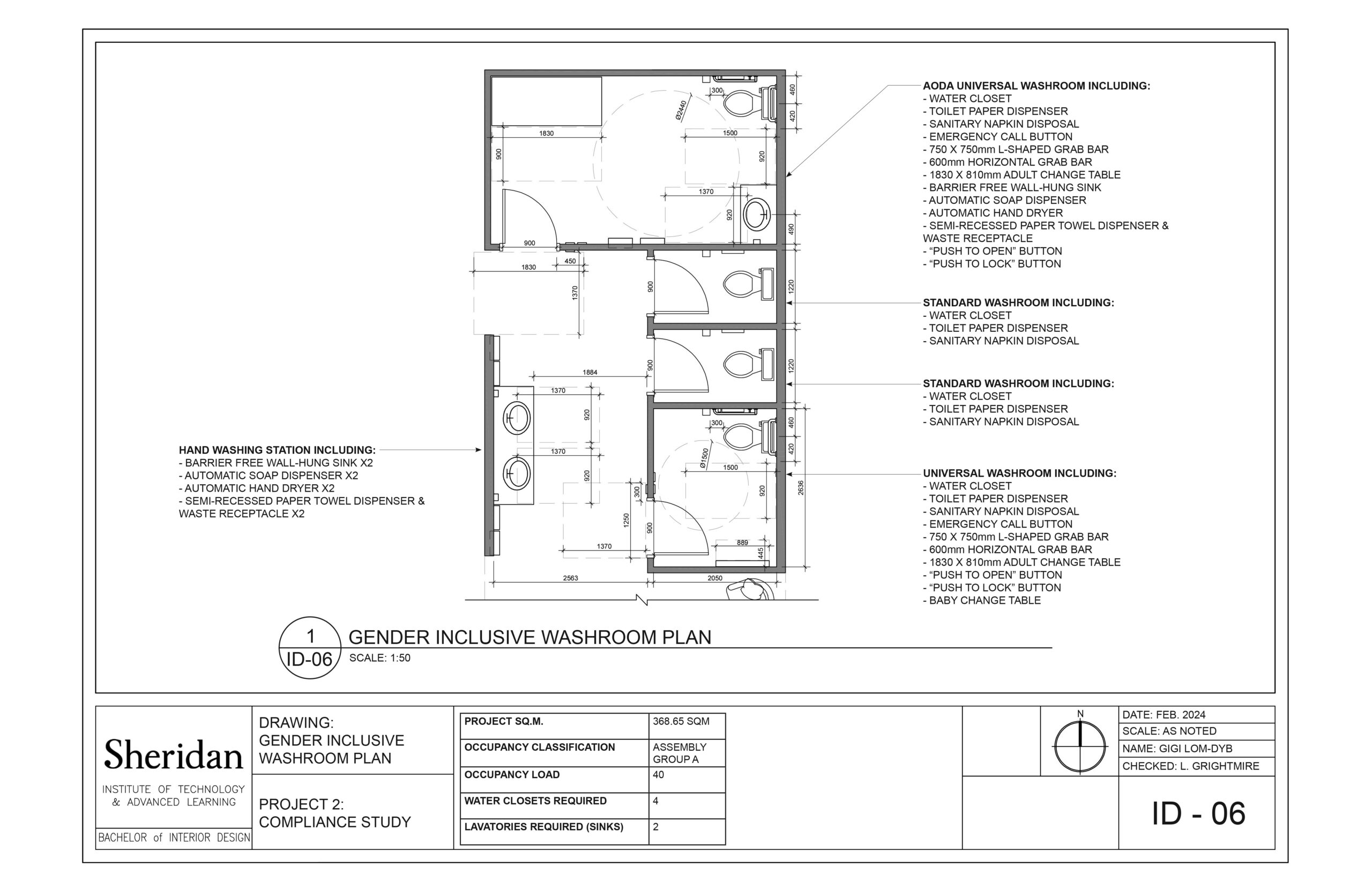
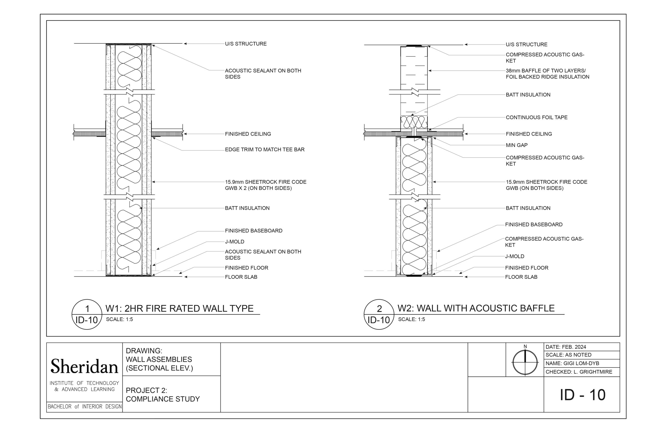
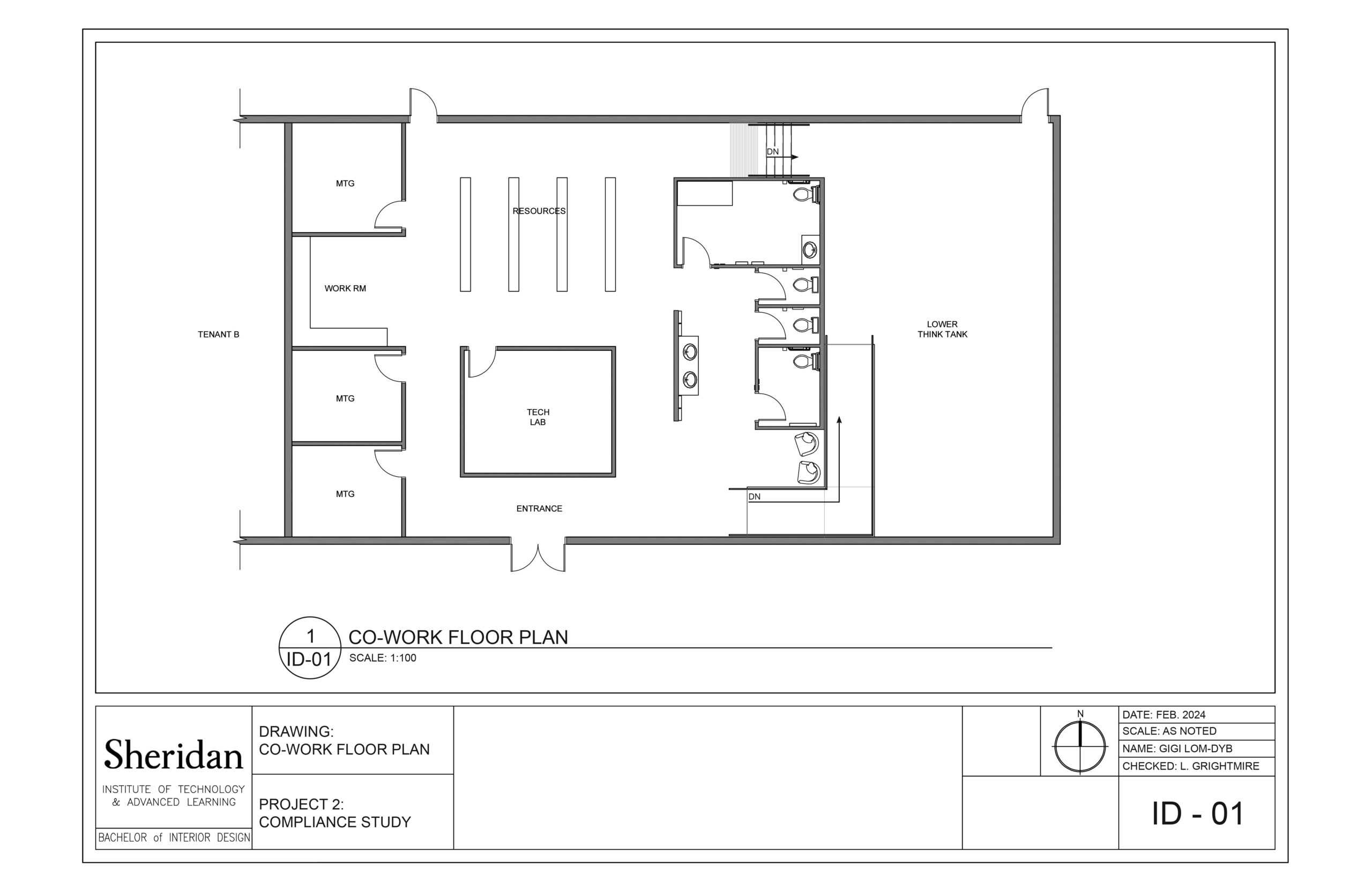
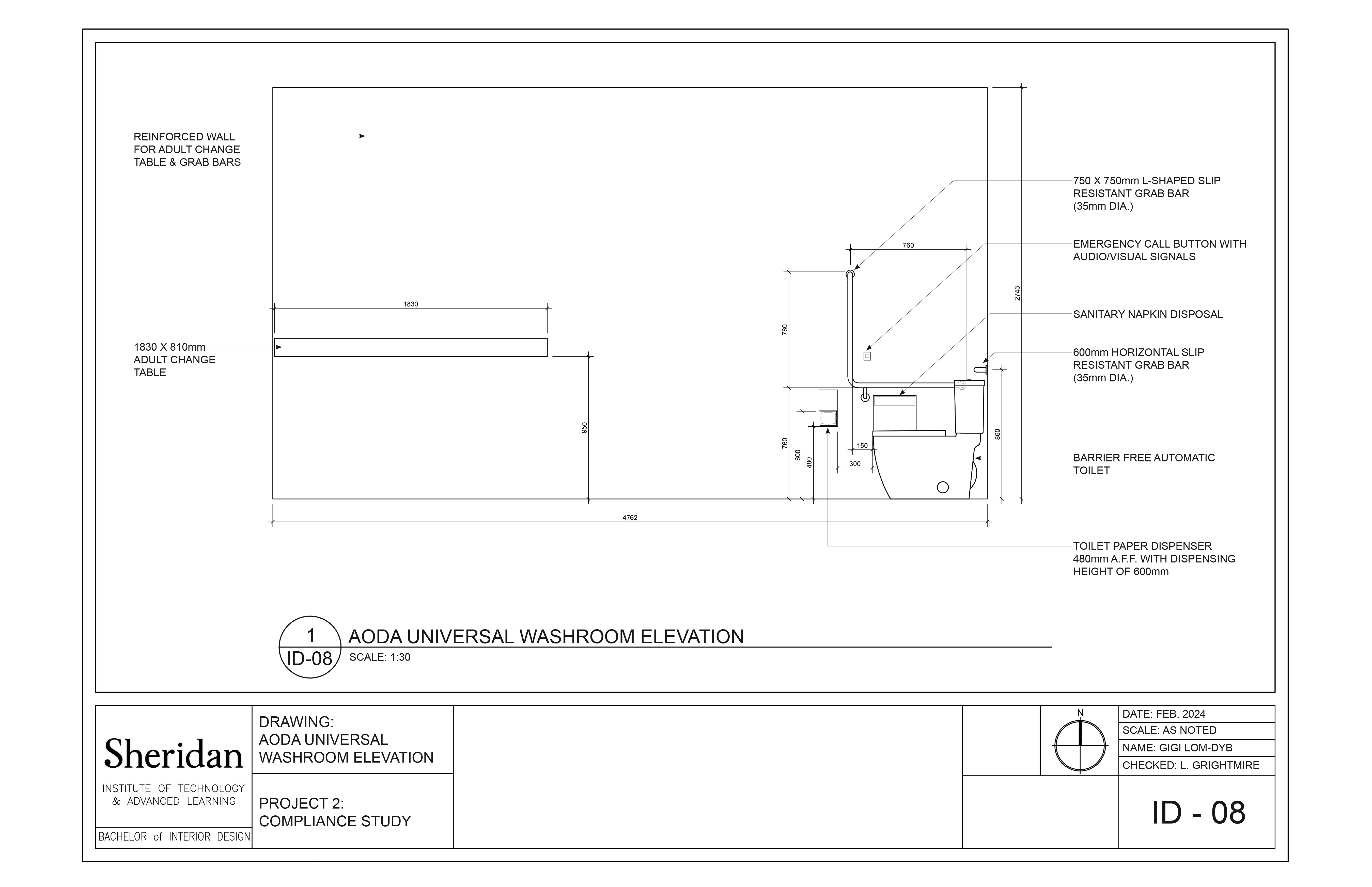
Students were assigned the project of designing a code-compliant ramp, stairs, and gender-inclusive washroom for a coworking space. The washroom design incorporated an AODA universal washroom stall.

Display Case Detail Package
Class: Detailing 2 (2023)

Students were tasked with creating a construction drawing package based on a retail display case we designed.

Floor Detailing
Class: Detailing 2 (2023)

Given a 15’-0” by 25’-0” retail space, students were tasked with creating a flooring design using hardwood. We were required to create a floor transition on each end of the space. The floor transition shows the floor going from hardwood to carpet and hardwood to tile.

© GIGI DYBALSKI