Retail: Dior

Class: Interiors – Retail Design (2023)
Collaborative work with: Jenny Bae Huggon

The House of Dior has always celebrated the enchantment and symbolism of lucky charms – we wanted to honour that in our store design.

DiorConceptRender1
DiorConceptRender2

Silk-screen prints of Toile de Juoy are hung on perimeter panels, while hand-drawn lily of the valley wallpaper adorn the storefront walls. A large podium displays 4 of the most influential couture dresses. Custom lighting inspired by Diors love of astrology spotlights the dresses.

DiorConceptRender3
DiorConceptRender4

An interactive fitting room screen allows customers to digitally try on clothes. The coffee bar creates a comfortable and inviting space. Private check-out rooms have direct access to the storage room to create private and discrete purchases. 

DiorConceptRender5
DiorConceptRender6

Our goal is for shoppers to immerse themselves in the enchanting and whimsical beauty that our products and design bring. The aim is to empower our clients to feel exceptionally valued and infuse a sense of luck and good fortune during their shopping experience.

DiorConceptRender10

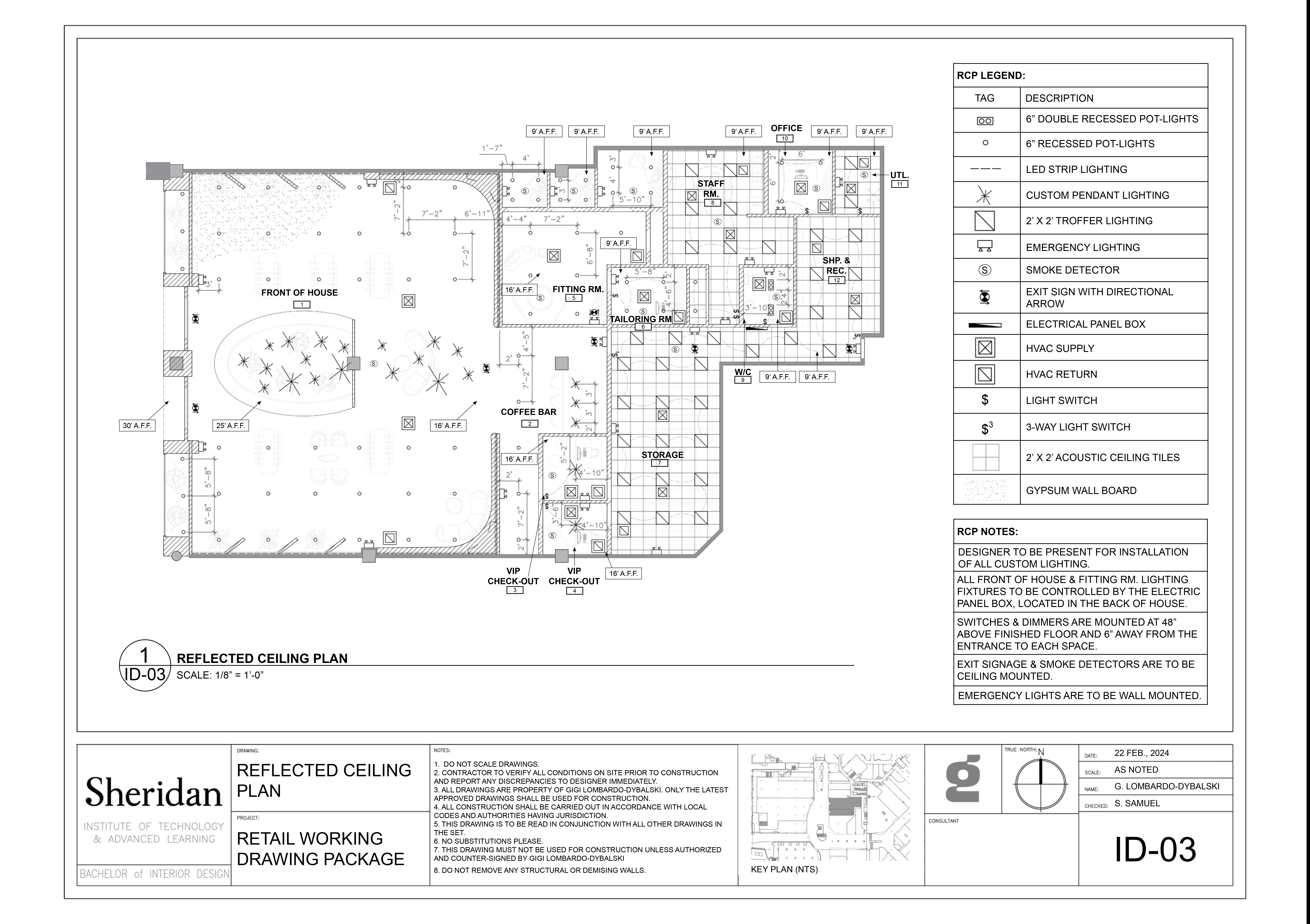
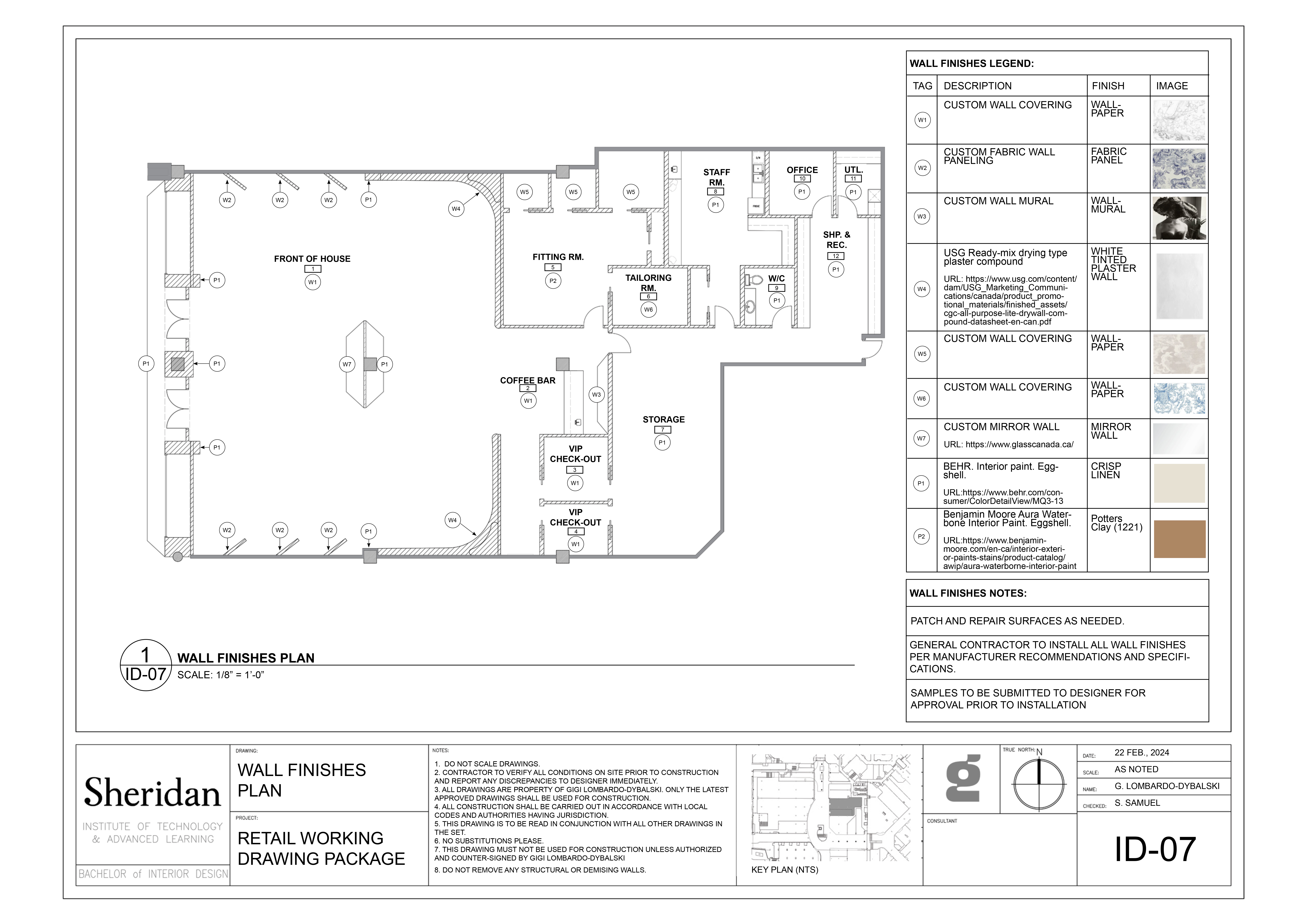
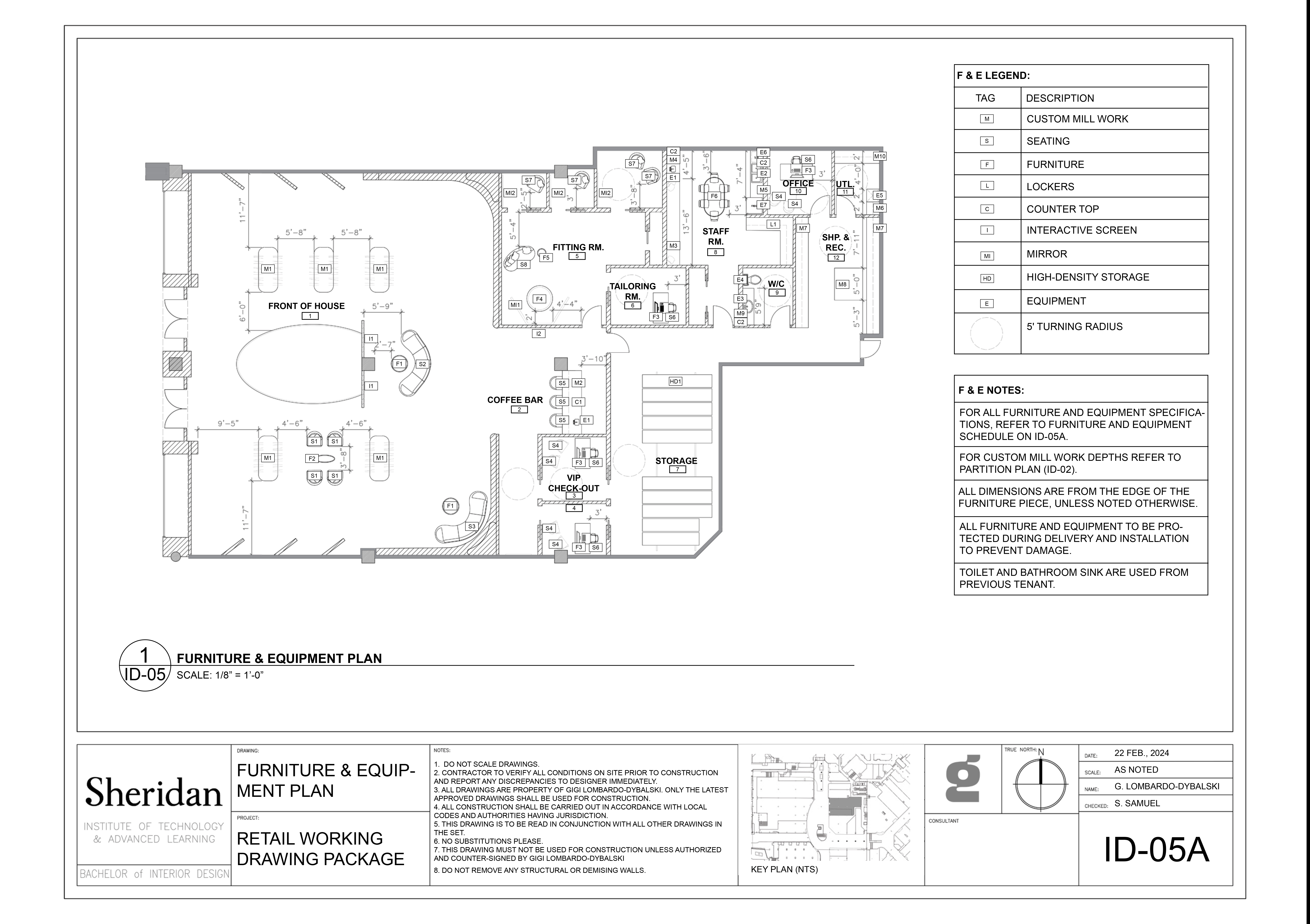
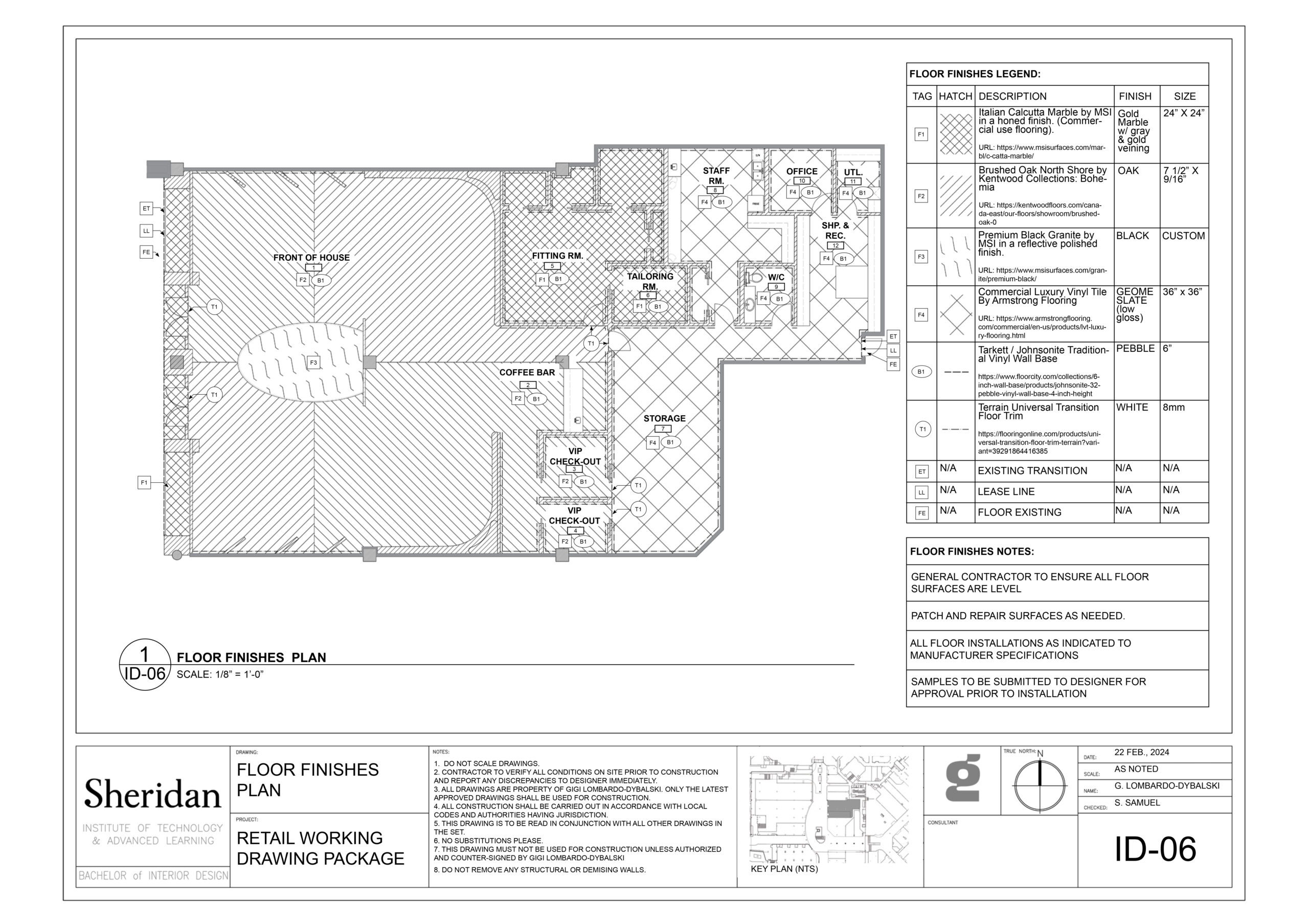
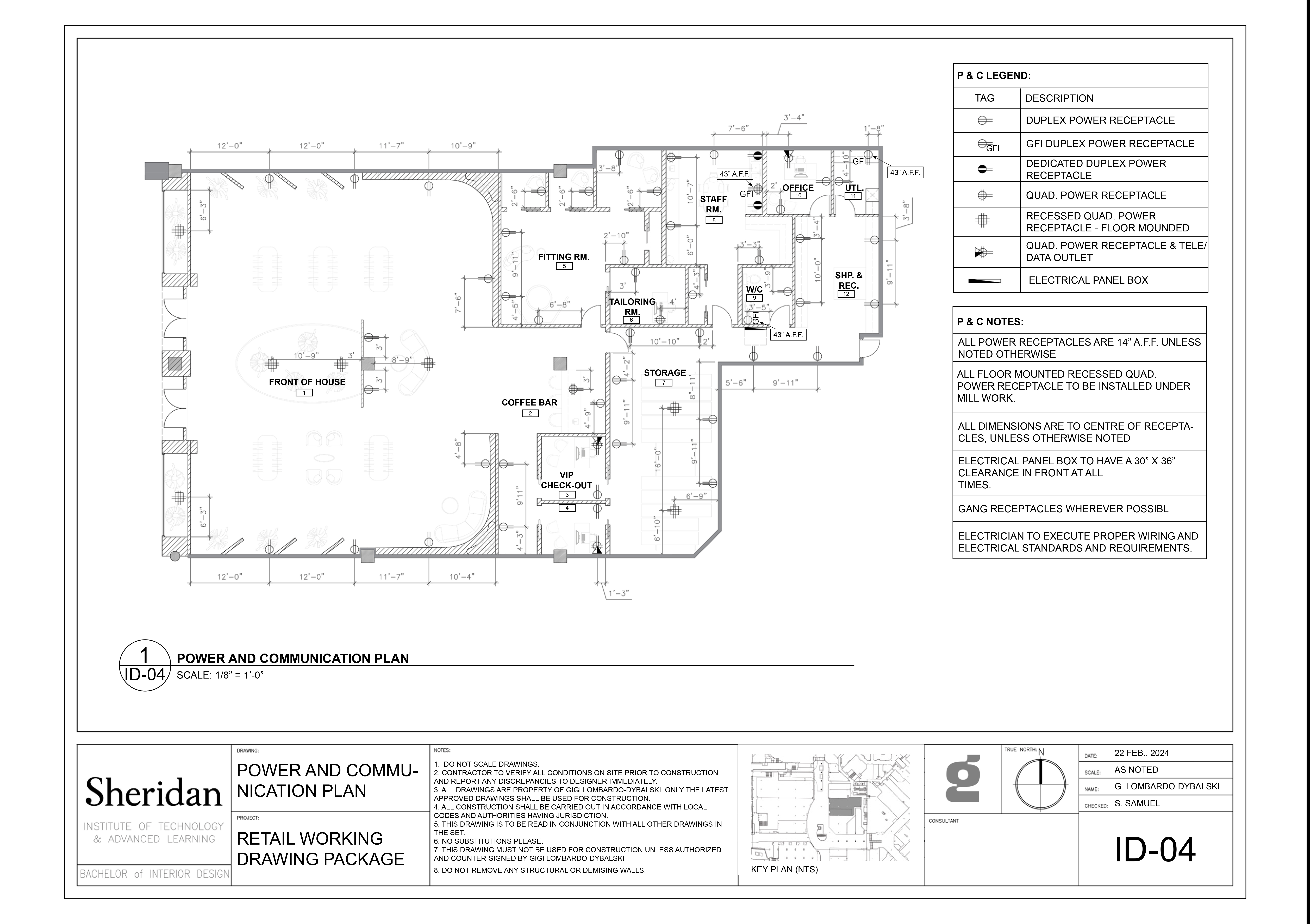
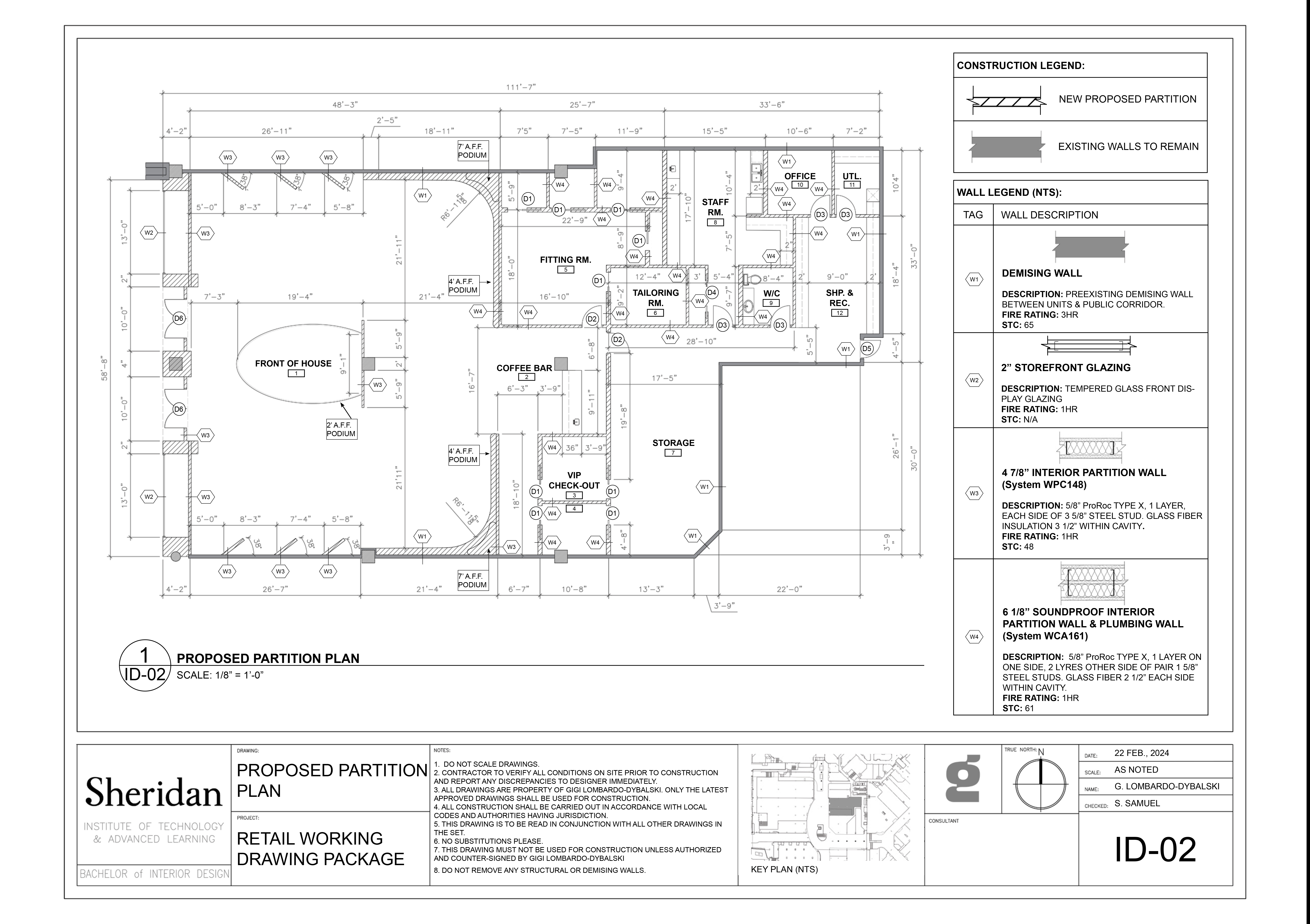
Drawing Package

© GIGI DYBALSKI